


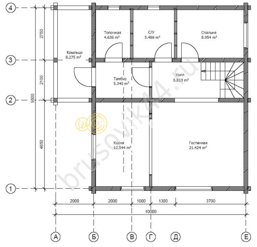
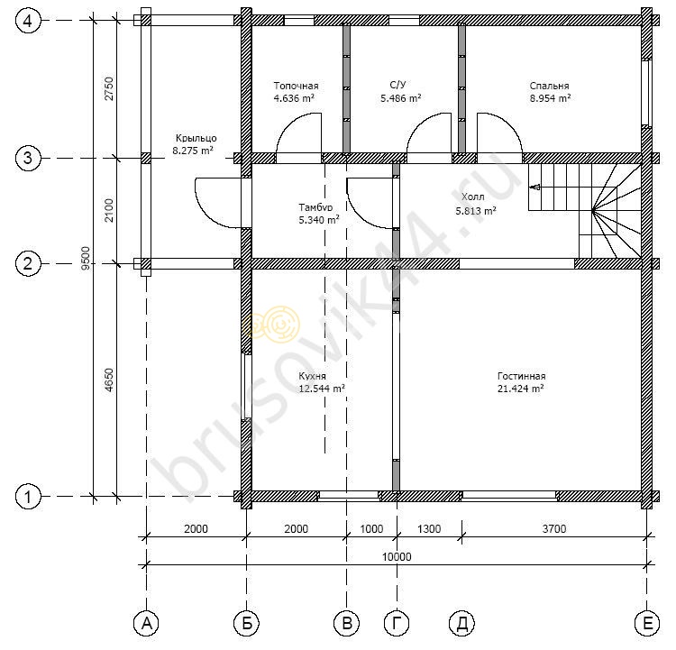
142 м2
Площадь
9,5х10 м
Размер
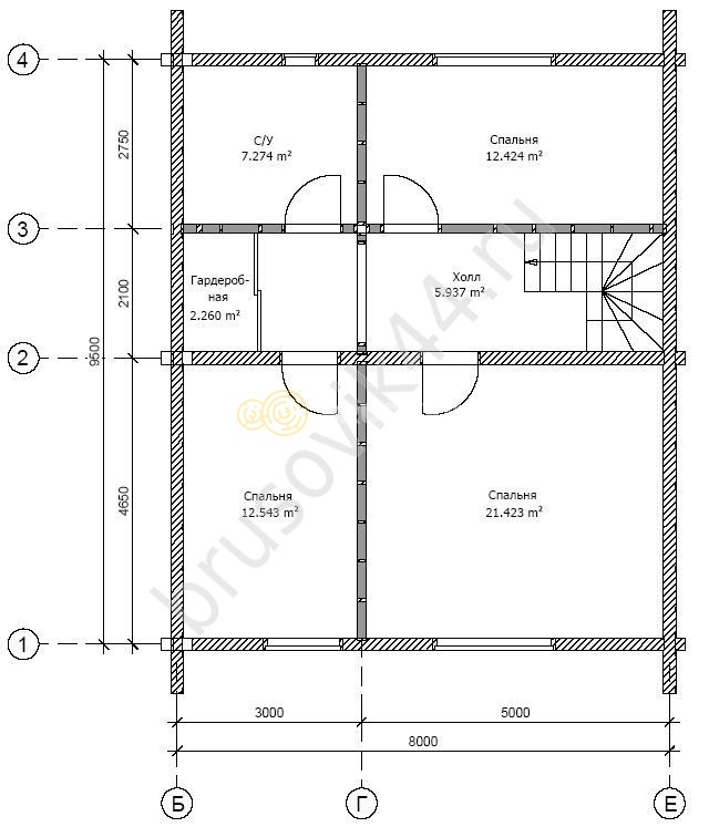
Полтора этажа
Этажность
Стоимость строительства
Простой брус 150х150 мм
1 810 000 руб.
Профилированный брус 145х145 мм
2 172 000 руб.
Ленточный фундамент
по запросу
Свайный фундамент
по запросу
Покрытие кровли металлочерепицей
по запросу
Базовая комплектация
Описание дома
Для клиентов
Отзывы
- Внутренние стены 1 и 2 этажей выполнены из бруса 150х100 мм;
- Сруб, выполнен из бруса 150х150 мм., высотой 3,00 метра, нижний венец обработан антисептиком;
- Высота 1 этажа - 2,70 метра (в чистоте);
- Высота 2 этажа - 2,50-2,70 метра (до ригелей);
- Доставка до участка заказчика;
- Кровля крыши рубероид;
- Обрешетка крыши - доска обрезная 25х150 мм;
- Погрузка и разгрузка необходимых пиломатериалов;
- Половые и потолочные балки (лаги) из бруса 150х100 м. с шагом 58 см.;
- Расходные материалы (гидроизоляция фундамента, межвенцовый утеплитель - джутовое льноволокно, деревянные нагеля (шканты), гвозди, антисептик, скобы и т.п.);
- Рубка угловых соединений в «ласточкин хвост» (теплый угол);
- Сборка дома «под крышу» на участке заказчика на берёзовые нагеля;
- Стропильная система (стропила, ригеля, стойки) - доска обрезная 50х150 мм. с шагом 58 см.;
- Фронтоны крыши - рубленные, брус 150х150 мм.;
- Черновые полы первого этажа;
- Черновые проемы окон и дверей согласно проекту;
Проект может быть изменен в соответствии с вашими требованиями: изменение основных размеров дома, перенос перегородок, дверей, окон.
* Возможно увеличение сечения бруса до 150х200, 200х200.
* Также возможно исполнение из профилированного бруса.


Сроки строительства дома от 1,5 до 4 недель с гарантией на весь период усадки сруба дома или бани.
Предоплата 5%. Четкие сроки поставки и строительства, без переплат.
Нет электричества на участке — предоставим генератор бесплатно.
Перепланировка, расчет по собственному проекту или индивидуальное проектирование дома — бесплатно.
Возможность посетить готовый или строящийся объекты (или посмотреть качество материалов и работ).
Нет жилья для бригады — построим бытовку за 17 тысяч рублей.